中文 中文

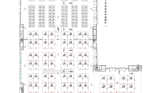
第110届成都糖酒会【食品机械馆】图纸

发布日期: 2024-07-10 18:02:55 阅读量: 24

食品加工机械干燥设备、灌装杀菌设备、储运设备、浓缩设备、发酵设备、分选分离设备、热交换设备、保鲜冷藏设备、果蔬生产设备、饮料加工设备、饼干加工设备、乳品设备、糖果及巧克力设备、肉类加工设备、豆制品设备

展馆名称:
西博城
展馆号:
1号馆、2号馆、3号馆
展位价格:
标准展位(9平方米)2万/个~2.3万/个 特装展位(36平方起租)1800元/㎡~2200元/㎡
展位预定:
  • 详细介绍

  • 展商名录

  • 联系我们

上一篇
第110届成都糖酒会【调味品及食品配料馆】图纸
下一篇
第110届成都糖酒会【包装及供应链馆】图纸
成都糖酒会

联系方式